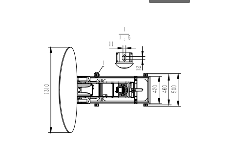
1.2m Drive-away Terminal

The Series of 1.2m Drive-away Terminal is intelligent, integrated design of drive-away satellite communications equipment. It can be used for oil and gas exploration, military communications, disaster management, emergency communications, etc.

FEATURES

 

High performance Carbon Fiber Reflector 

●Modular architecture, simple Ku and Ka band switching

●Original star alignment algorithm and first-class servo control system ensure fast alignment



CONTACT US

Name

Phone

Email

Address

Message